Terreno edificabile residenziale con progetto approvato a Galzignano Terme
Descrizione
VALSANZIBIO: Proponiamo in vendita un ampio terreno edificabile di 1058 mq nel comune di Galzignano Terme, situato in una tranquilla via decentrata ma comodissima ai principali servizi.
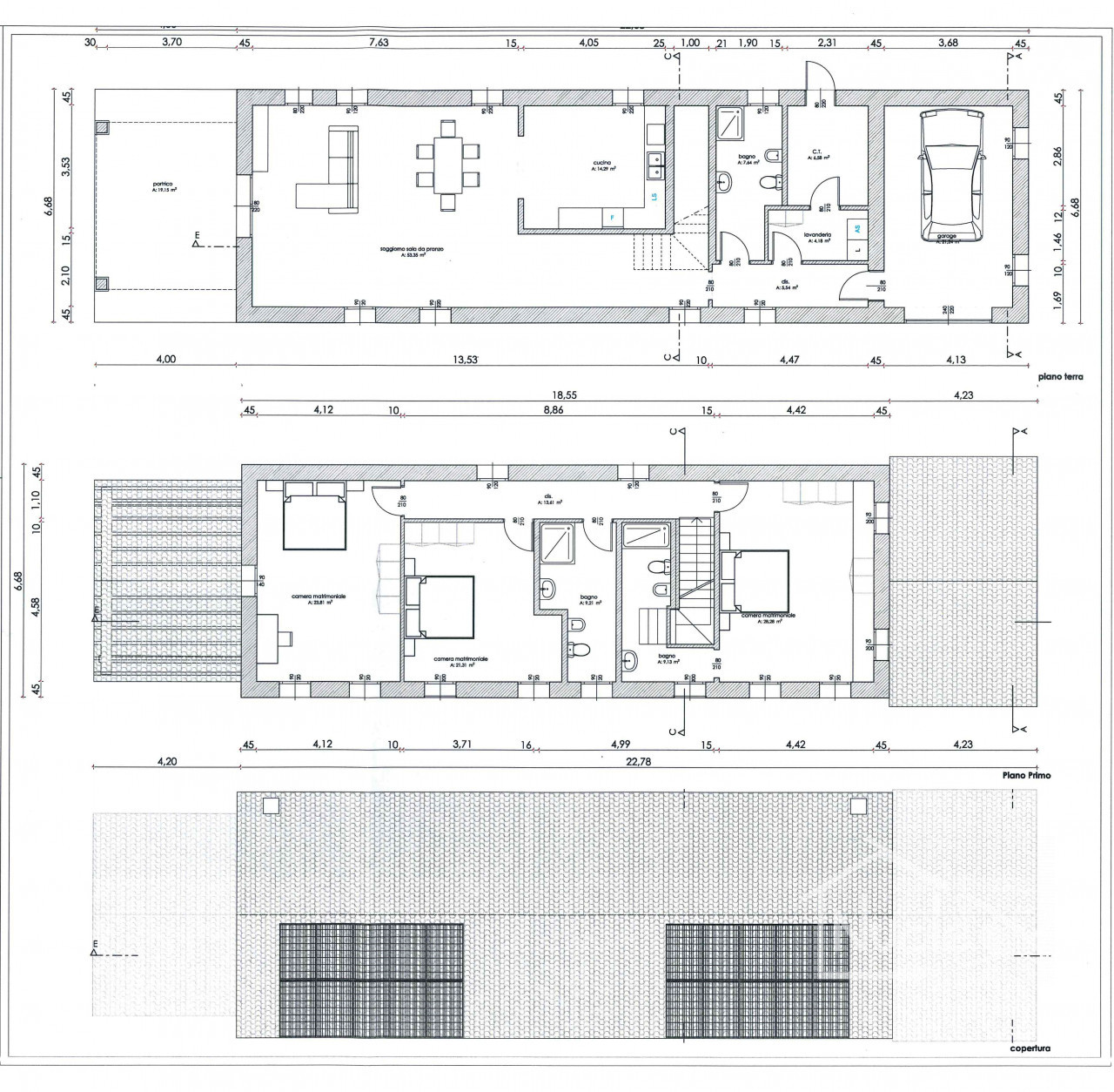
Il lotto offre già un progetto approvato per la realizzazione di una splendida villa singola su due livelli: circa 180 mq complessivi tra abitazione, garage e portico coperto.
L’immobile previsto presenta linee eleganti e moderne, circondato da verde privato recintato che garantisce privacy e tranquillità assoluta.
La zona è caratterizzata da paesaggi collinari suggestivi tipici dei Colli Euganei ed è ideale per chi cerca relax senza rinunciare alla praticità: Monselice si raggiunge in soli 12 minuti d’auto mentre Padova dista appena mezz’ora.
Nel prezzo sono compresi gli oneri di costruzione. Grazie all’ubicazione privilegiata potrai godere della quiete del contesto rurale pur rimanendo vicino a scuole, negozi e trasporti pubblici.
Non lasciarti sfuggire questa rara occasione per dare vita al tuo nuovo progetto abitativo o fare un investimento sicuro! Contatta subito l’agenzia PRINCIPE UMBERTO per ricevere maggiori informazioni o fissare un appuntamento sul posto.
Tra i servizi erogati dall'agenzia immobiliare Principe Umberto, ci sono anche le valutazioni, stime, consulenze pratiche di accesso al mutuo e grazie alla collaborazione stretta con studi notarili, geometri e architetti, riusciamo a fornire un servizio completo nell'aspetto pratico e burocratico.
Immobiliare Principe Umberto Via Roma 55 - Monselice (PD) oppure contattare il numero 0429/781349 - 392/3567993. indirizzo e-mail monseliceimmobiliareprincipe@gmail.com. Per altri annunci visita il nostro sito www.principecasa.it
Condividi
Dettagli
| Riferimento | TEA001 |
| Prezzo | 75.000 € |
| Tipologia | Terreno |
| Contratto | vendita |
| Comune | Galzignano Terme |
| Mq | 1.058m2 |
| Classe energetica | ![]() |
| I.P.E | 0 kWh/mq/anno |
