VALSANZIBIO - PROGETTO CASA SINGOLA SU PIANO UNICO
Descrizione
Proponiamo progetto di casa singola sviluppata su piano unico su lotto di 1.000mq.
Quello che si propone è un'idea di casa realizzata in bio-edilizia o con sistemi tradizionali.
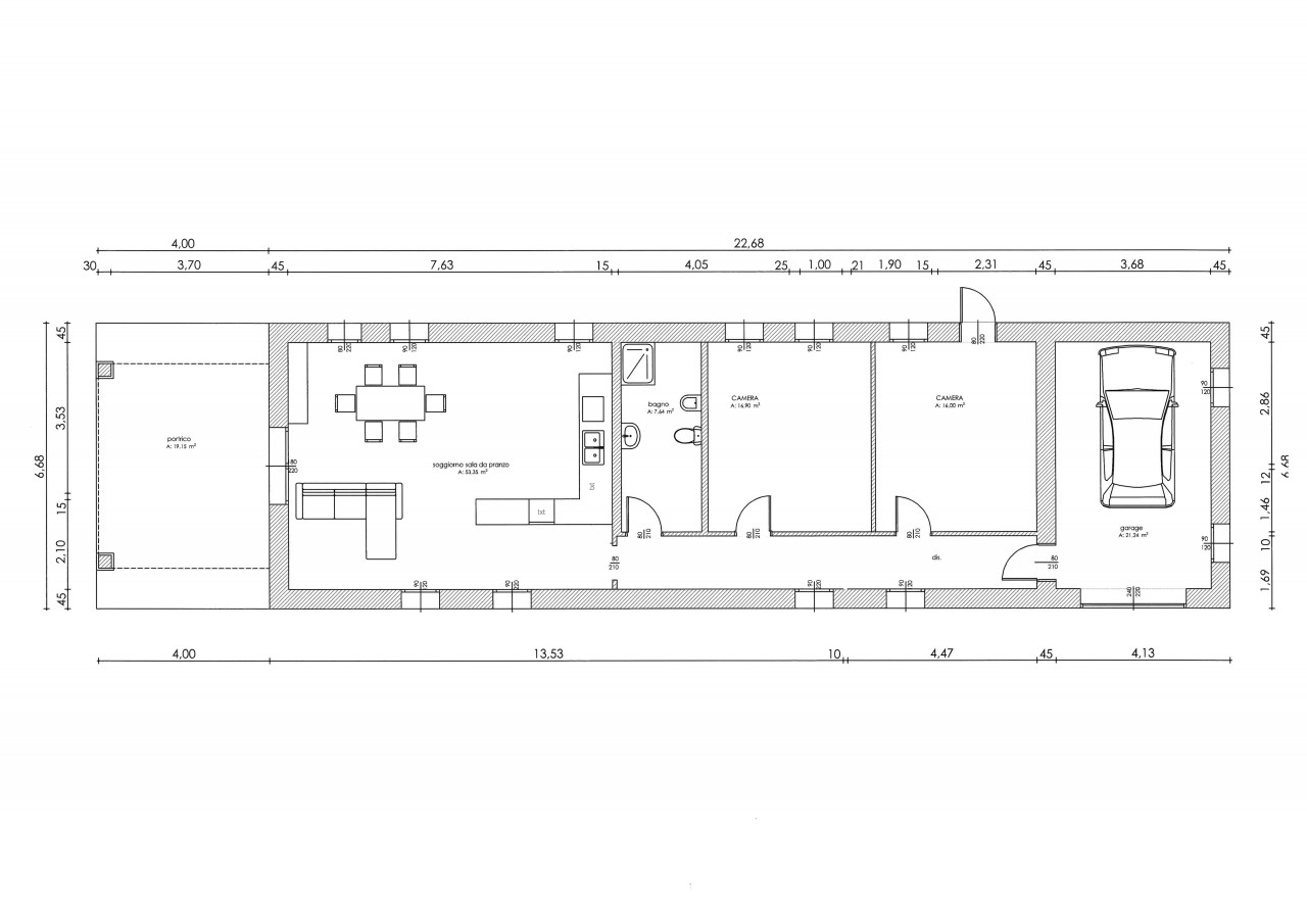
Ampia zona living di 53mq, due camere matrimoniali, bagno. Garage di circa 20mq e ampio portico.
Il contesto del parco colli è perfetto per progetti di ecosostenibilità, innovazione, coniugando il massimo comfort abitativo, altissima efficienza energetica, benessere e salubrità degli ambienti e la sicurezza sismica garantita.
Il progetto è revisionabile nel limite di questa metratura ma personalizzabile.
Nota bene: il disegno rappresentato è un idea di massima del realizzabile. Per ulteriori dettagli, contattare l'agenzia Immobiliare Principe Umberto Via Roma 55 - Monselice (PD) oppure contattare il numero 0429/781349 - 392/3567993. indirizzo e-mail monseliceimmobiliareprincipe@gmail.com.
Tra i servizi erogati dall'agenzia immobiliare Principe Umberto, ci sono anche le valutazioni, stime, consulenze pratiche di accesso al mutuo e grazie alla collaborazione stretta con studi notarili, geometri e architetti, riusciamo a fornire un servizio completo nell'aspetto pratico e burocratico.
Per altri annunci visita il nostro sito www.principecasa.it
Condividi
Dettagli
| Riferimento | TEA002 |
| Prezzo | 405.000 € |
| Tipologia | Casa singola |
| Contratto | vendita |
| Comune | Galzignano Terme |
| Mq | 150m2 |
| Classe energetica | ![]() |
| I.P.E | 0 kWh/mq/anno |
